WC-Element plus 5 cm, barrierefrei VIS
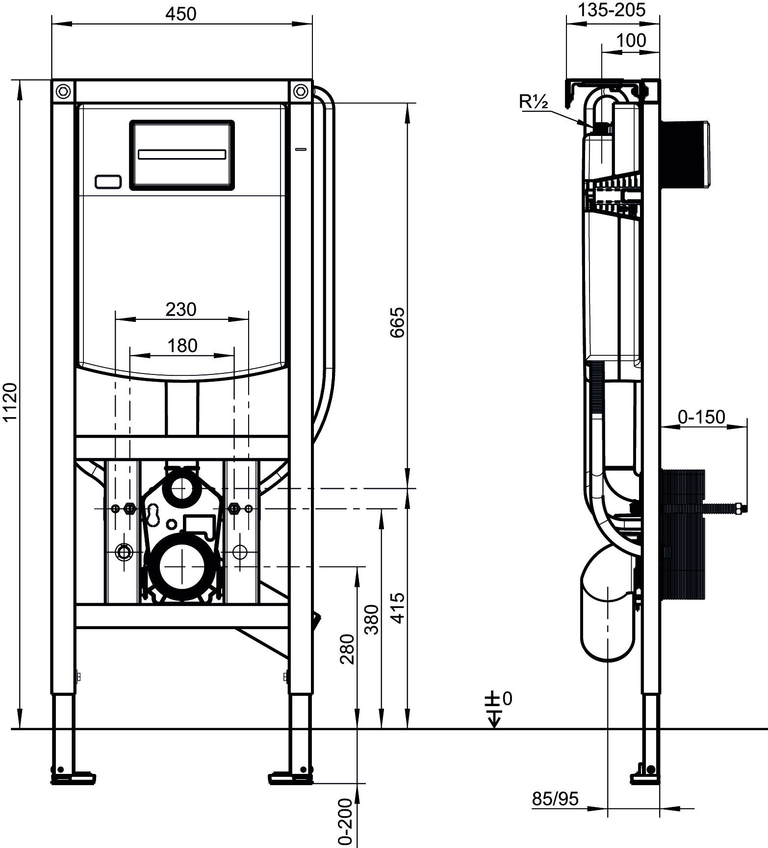
VIS WC-Element E3 f.Trockenbau barriere- frei, m. Fresh-Box , BH: 1120mm, CONEL
Das VIS WC-Element für Wand-WCs ist 5 cm höher als reguläre Toiletten und eignet sich damit ideal für barrierefrei WC-Lösungen.
- mit Fresh Box für Wasserkastenwürfel
- mit verstellbarer Spülstromdrossel
- mit Anschlussmöglichkeit für Dusch-WC und elektronische Auslösung
- für UP-Spülkasten 7,5 / 4,5 l mit Betätigung von vorn
- selbsttragende, pulverbeschichtete Stahlrahmenkonstruktion zur Trockenverkleidung
- Einbau vor Massivwand
- in Leichtbau-Ständerwand uvm.
- selbsthemmende Füße mit verstellbaren Fußplatten passend für Trockenbau Profile UW 50 und UW 75 und CONEL VIS Installationssystem
- für Fußbodenaufbau von 0 - 200 mm
- inkl. Wandhalter mit Tiefenverstellung von Vorderkante
- Element 135 - 205 mm
- schwitzwasserisolierter UP-Spülkasten mit 2-Mengenspülung (7,5 - 4,5 l / 4 - 2 l)
- Werkseinstellung 6 und 3 l
- Übertragung der Tastenfunktion über flexible Kabeltechnik
- WC-Befestigung ist 50 mm höher als beim Standard-WC-Element
- Füllventil Armaturengruppe I
- 2-teiliges Eckventil-Anschlussset R 1/2
- Bauschutzkasten für Revisionsöffnung kürzbar
- Ablaufbogenschelle mit 4 Verstellpositionen
- wandbündig kürzbare Anschlussbox für Zu- und Ablauf der Keramik mit integriertem Stromanschluss und Aufnahme für Netzteil zur elektronischen Auslösung
- WC-Anschlussbogen aus PE 90° ø 90 mm
- Übergangsmuffe aus PE ø 90/110 mm
- WC-Anschlussgarnitur ø 90 mm
- 2 Gewindebolzen M12
- inkl. Befestigungsmaterial
- Schallschutzset und Schutzstopfen
- UP-Spülkasten geprüft nach DIN EN 14055
- ohne Betätigungsplatte
Das VIS WC-Element für Wand-WCs ist 5 cm höher als reguläre Toiletten und eignet sich damit ideal für barrierefrei WC-Lösungen.
- mit Fresh Box für Wasserkastenwürfel
- mit verstellbarer Spülstromdrossel
- mit Anschlussmöglichkeit für Dusch-WC und elektronische Auslösung
- für UP-Spülkasten 7,5 / 4,5 l mit Betätigung von vorn
- selbsttragende, pulverbeschichtete Stahlrahmenkonstruktion zur Trockenverkleidung
- Einbau vor Massivwand
- in Leichtbau-Ständerwand uvm.
- selbsthemmende Füße mit verstellbaren Fußplatten passend für Trockenbau Profile UW 50 und UW 75 und CONEL VIS Installationssystem
- für Fußbodenaufbau von 0 - 200 mm
- inkl. Wandhalter mit Tiefenverstellung von Vorderkante
- Element 135 - 205 mm
- schwitzwasserisolierter UP-Spülkasten mit 2-Mengenspülung (7,5 - 4,5 l / 4 - 2 l)
- Werkseinstellung 6 und 3 l
- Übertragung der Tastenfunktion über flexible Kabeltechnik
- WC-Befestigung ist 50 mm höher als beim Standard-WC-Element
- Füllventil Armaturengruppe I
- 2-teiliges Eckventil-Anschlussset R 1/2
- Bauschutzkasten für Revisionsöffnung kürzbar
- Ablaufbogenschelle mit 4 Verstellpositionen
- wandbündig kürzbare Anschlussbox für Zu- und Ablauf der Keramik mit integriertem Stromanschluss und Aufnahme für Netzteil zur elektronischen Auslösung
- WC-Anschlussbogen aus PE 90° ø 90 mm
- Übergangsmuffe aus PE ø 90/110 mm
- WC-Anschlussgarnitur ø 90 mm
- 2 Gewindebolzen M12
- inkl. Befestigungsmaterial
- Schallschutzset und Schutzstopfen
- UP-Spülkasten geprüft nach DIN EN 14055
- ohne Betätigungsplatte
Dokumente
Vermaßtes Bild / Strichzeichnung
Ersatzteillisten
Montageanleitung
Zulassung
Technische Info
Videos
VIS WC-Element E3 f. Trockenbau, m. UP-

VIS WC-Element E3 f. Trockenbau, m. UP-

VIS WC-Element E3 f. Trockenbau, m. UP-

VIS WC-Element E3 f. Trockenbau, m. UP-

VIS WC-Element E3 f. Trockenbau, m. UP-

VIS WT-Element E3 f. Trockenbau,

VIS WC-Element E3 f. Trockenbau, m. UP-

VIS WC-Element E3 f. Trockenbau, m. UP-

VIS WC-Element E3 f. Trockenbau, m. UP-

Technische Spezifikationen
Nenndurchmesser Anschluss Leitungswasser
1/2"
Verstellbare Breite
nein
Bauhöhe (cm)
112
Anschluss Leitungswasser
sonstige
Min. Spülvolumen (l)
2
Max. Spülvolumen (l)
7.5
Tiefenverstellbar
ja
Spülung
zwei Mengen
Mit Kontaktgeräuschisolierungsset
ja
Mit Halterung geeignet für hohe Wandmontage
ja
Mit Halterung geeignet für Bodenmontage
ja
Mit Eckventil
ja
Mit Befestigungsmaterial für das Element
ja
Mit Abflussbogen
ja
Handbedienung möglich
ja
Einstellbares Spülvolumen
ja
Selbsttragende Konstruktion
ja
Geeignet für die Bedienung über die Ablage
nein
Geeignet für die Frontbedienung
ja
Geeignet für elektrische Bedienung
ja
Oberfläche
pulverbeschichtet
Werkstoff
Stahl
Bauart
selbsttragend
Höhenverstellbar
höhenverstellbar
Max. Breite (cm)
45
Max. Höhe (cm)
112
Max. Tiefe (cm)
20.5
Min. Tiefe (cm)
13.5
Ergebnis
360° Ansicht
3D-MODELL MIT ERSATZTEILEN
Technische Spezifikationen
Nenndurchmesser Anschluss Leitungswasser
1/2"
Verstellbare Breite
nein
Bauhöhe (cm)
112
Anschluss Leitungswasser
sonstige
Min. Spülvolumen (l)
2
Max. Spülvolumen (l)
7.5
Tiefenverstellbar
ja
Spülung
zwei Mengen
Mit Kontaktgeräuschisolierungsset
ja
Mit Halterung geeignet für hohe Wandmontage
ja
Mit Halterung geeignet für Bodenmontage
ja
Mit Eckventil
ja
Mit Befestigungsmaterial für das Element
ja
Mit Abflussbogen
ja
Handbedienung möglich
ja
Einstellbares Spülvolumen
ja
Selbsttragende Konstruktion
ja
Geeignet für die Bedienung über die Ablage
nein
Geeignet für die Frontbedienung
ja
Geeignet für elektrische Bedienung
ja
Oberfläche
pulverbeschichtet
Werkstoff
Stahl
Bauart
selbsttragend
Höhenverstellbar
höhenverstellbar
Max. Breite (cm)
45
Max. Höhe (cm)
112
Max. Tiefe (cm)
20.5
Min. Tiefe (cm)
13.5
Dokumente
Vermaßtes Bild / Strichzeichnung
Ersatzteillisten
Montageanleitung
Zulassung
Technische Info
Videos
VIS WC-Element E3 f. Trockenbau, m. UP-

VIS WC-Element E3 f. Trockenbau, m. UP-

VIS WC-Element E3 f. Trockenbau, m. UP-

VIS WC-Element E3 f. Trockenbau, m. UP-

VIS WC-Element E3 f. Trockenbau, m. UP-

VIS WT-Element E3 f. Trockenbau,

VIS WC-Element E3 f. Trockenbau, m. UP-

VIS WC-Element E3 f. Trockenbau, m. UP-

VIS WC-Element E3 f. Trockenbau, m. UP-

3D Modell
KATALOG
360° Ansicht
3D-MODELL MIT ERSATZTEILEN
Weitere Produkte Aus der Kategorie

WC-Element für den Nassbau VIS

Doppelverbinder VIS

Duschablaufelement für Wand- u. Bodenmontage VIS

Eckverbinder VIS

Trennstreifen VIS

Duschablaufelement für Leerelement VIS

Universal-Verkleidungsplatte VIS

Verbindungsset VIS

WC-Element mit Fresh-Box VIS

Bidet-Montageelement VIS

Waschtisch-Montageelement barrierefrei VIS
