Waschtisch-Element für Einlocharmaturen VIS
VIS WT-Element E3 f. Trockenbau, f. Einloch-Batterie, BH: 1120mm, CONEL
CVIS3WT112
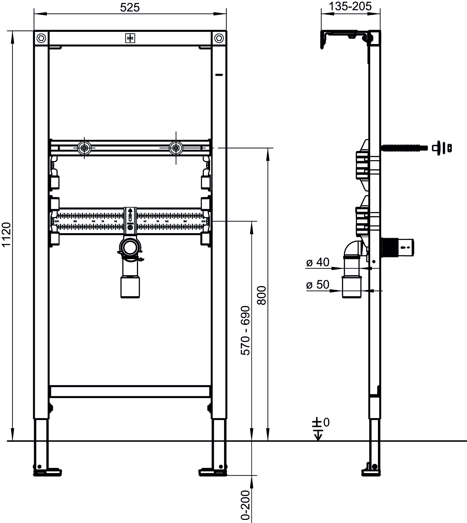
Das VIS Waschtisch-Montageelement eignet sich für den Trockenbau und ist speziell für Einlocharmaturen gemacht.
- selbsttragende, pulverbeschichtete Stahlrahmenkonstruktion zur Trockenverkleidung
- Einbau vor Massivwand
- in Leichtbau-Ständerwand und CVIS Schienenbefestigungssystem
- selbsthemmende Füße mit verstellbaren Fußplatten passend für Trockenbau Profile UW 50 und UW 75 und CONEL VIS Installationssystem
- einsetzbar für Waschtische und Handwaschbecken
- 4 Befestigungspunkte
- für Fußbodenaufbau von 0 - 200 mm
- inkl. Wandhalter mit Tiefenverstellung von Vorderkante Element 135 - 205 mm
- minimales Stichmaß der Eckventile 80 mm
- mit mehrfach verleimter Schichtholzplatte und Stichmaßskalierung zur freien Positionierung von Trinkwasserrohr-Systemwandscheiben
- mit Schallschutzset, inkl. Befestigungs- und Anschlussmaterial
Produkt bei unseren Großhandelspartnern kaufen:
Großhandel in Ihrer Nähe finden
*Jetzt Produkt merken und anschließen an einen Großhandels-Shop übermitteln und bestellen
Das VIS Waschtisch-Montageelement eignet sich für den Trockenbau und ist speziell für Einlocharmaturen gemacht.
- selbsttragende, pulverbeschichtete Stahlrahmenkonstruktion zur Trockenverkleidung
- Einbau vor Massivwand
- in Leichtbau-Ständerwand und CVIS Schienenbefestigungssystem
- selbsthemmende Füße mit verstellbaren Fußplatten passend für Trockenbau Profile UW 50 und UW 75 und CONEL VIS Installationssystem
- einsetzbar für Waschtische und Handwaschbecken
- 4 Befestigungspunkte
- für Fußbodenaufbau von 0 - 200 mm
- inkl. Wandhalter mit Tiefenverstellung von Vorderkante Element 135 - 205 mm
- minimales Stichmaß der Eckventile 80 mm
- mit mehrfach verleimter Schichtholzplatte und Stichmaßskalierung zur freien Positionierung von Trinkwasserrohr-Systemwandscheiben
- mit Schallschutzset, inkl. Befestigungs- und Anschlussmaterial
Dokumente
Vermaßtes Bild / Strichzeichnung
Ersatzteillisten
Zulassung
Montageanleitung
Datenblatt
Videos
VIS WT-Element E3 f. Trockenbau,

Technische Spezifikationen
Bauhöhe (cm)
112
Oberfläche
pulverbeschichtet
Werkstoff
Stahl
Bauart
selbsttragend
Max. Breite (cm)
52.5
Max. Höhe (cm)
112
Max. Tiefe (cm)
20.5
Min. Tiefe (cm)
13.5
Ergebnis
360° Ansicht
3D-MODELL MIT ERSATZTEILEN
3D
Technische Spezifikationen
Bauhöhe (cm)
112
Oberfläche
pulverbeschichtet
Werkstoff
Stahl
Bauart
selbsttragend
Max. Breite (cm)
52.5
Max. Höhe (cm)
112
Max. Tiefe (cm)
20.5
Min. Tiefe (cm)
13.5
Dokumente
Vermaßtes Bild / Strichzeichnung
Ersatzteillisten
Zulassung
Montageanleitung
Datenblatt
Videos
VIS WT-Element E3 f. Trockenbau,

3D Modell
KATALOG
360° Ansicht
3D-MODELL MIT ERSATZTEILEN
3D
Weitere Produkte Aus der Kategorie

WC-Element für den Nassbau VIS
KBN CVISWCN
1 Ausführung

Doppelverbinder VIS
KBN CVISV
1 Ausführung

Duschablaufelement für Wand- u. Bodenmontage VIS
KBN CVISDEGKWBES
4 Ausführungen

Eckverbinder VIS
KBN CVISEV
1 Ausführung

Trennstreifen VIS
KBN CVISTS
1 Ausführung

Duschablaufelement für Leerelement VIS
KBN CVISDEGKES
4 Ausführungen

Universal-Verkleidungsplatte VIS
KBN CVISP
1 Ausführung

Verbindungsset VIS
KBN CVISVS
1 Ausführung

WC-Element mit Fresh-Box VIS
KBN CVIS3WCT112
1 Ausführung

Bidet-Montageelement VIS
KBN CVIS3BD112
1 Ausführung

Waschtisch-Montageelement barrierefrei VIS
KBN CVIS3WTB112
1 Ausführung

Urinal-Montageelement VIS
KBN CVIS3U112
1 Ausführung