Gummi-Adapterkupplung DRAIN LINK
Gummi Adapterkupplung DRAIN LINK 53-63 x 32-40mm CONEL
CODLAK0632
DRAIN LINK Adapterkupplung
- für erdverlegte und oberirdische Entwässerungssysteme innerhalb und außerhalb von Gebäuden
- mit unterschiedlichen Spannbereichen und Längen
- zur außenliegenden Verbindung zweier Spitzenden unterschiedlicher Rohrwerkstoffe und Nennweiten
- Temperaturbeständigkeit -40°C bis +120°C
- kurzfristige Spitzentemperatur +160°C
- UV-beständiges Material
- aus Gummi
- druckdicht bis 0.6 bar Wasser / -0.3Vakuum
- Edelstahl V2A / 1.4301 nach DIN EN 10088-2
- Norm / Zulassung DIN EN 16397
- Europäische Zulassung ETA-09/0248, CE16
-
Dichtungsmaterial EPDM Dichtprofil mit Führungsrillen nach DIN EN 681-1
Produkt bei unseren Großhandelspartnern kaufen:
Großhandel in Ihrer Nähe finden
*Jetzt Produkt merken und anschließen an einen Großhandels-Shop übermitteln und bestellen
DRAIN LINK Adapterkupplung
- für erdverlegte und oberirdische Entwässerungssysteme innerhalb und außerhalb von Gebäuden
- mit unterschiedlichen Spannbereichen und Längen
- zur außenliegenden Verbindung zweier Spitzenden unterschiedlicher Rohrwerkstoffe und Nennweiten
- Temperaturbeständigkeit -40°C bis +120°C
- kurzfristige Spitzentemperatur +160°C
- UV-beständiges Material
- aus Gummi
- druckdicht bis 0.6 bar Wasser / -0.3Vakuum
- Edelstahl V2A / 1.4301 nach DIN EN 10088-2
- Norm / Zulassung DIN EN 16397
- Europäische Zulassung ETA-09/0248, CE16
-
Dichtungsmaterial EPDM Dichtprofil mit Führungsrillen nach DIN EN 681-1
Dokumente
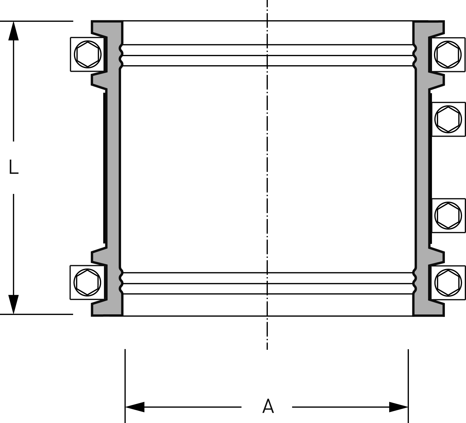
Vermaßtes Bild / Strichzeichnung
Leistungserklärung
Datenblatt
Technische Spezifikationen
Länge (cm)
6.5
Werkstoff
Gummi
Ergebnis
Produktvarianten
Technische Spezifikationen
Länge (cm)
6.5
Werkstoff
Gummi
Dokumente
Vermaßtes Bild / Strichzeichnung
Leistungserklärung
Datenblatt
3D Modell
KATALOG
360° Ansicht
Produktvarianten
Weitere Produkte Aus der Kategorie

Gummi-Schlauchadapter DRAIN LINK
KBN CODLSA100115
19 Ausführungen

Schlauchadapter Typ 2B DRAIN
KBN CODLSA2B150175
10 Ausführungen

Gummi-Adapterkupplung DRAIN LINK
KBN CODLAK0894
28 Ausführungen

Kombiadapter DRAIN LINK
KBN CODLKA10050
8 Ausführungen

Gummiadapter DRAIN LINK
KBN CODLGA4540
5 Ausführungen

Steckadapter DRAIN LINK
KBN CODLSTA6985
4 Ausführungen

Anschlussstück HT-SML DRAIN LINK
KBN CODLAS50ML
3 Ausführungen

Innen-Reduzierstück Drain Link
KBN CODLIR1009070
2 Ausführungen

Anschlussstück DRAIN LINK
KBN CODLAS5032
1 Ausführung

Gummi-Schlauchadapter Typ 2B DRAIN LINK
KBN CODLSA2B8595
2 Ausführungen